Osiedle w stylu industrialnym blisko lasu

lokalizacja: Gdańsk, Stokłosy

702 500,00 PLN

7 918,00 PLN

Opis nieruchomości

Inwestycja zlokalizowana… Nie masz czasu, by doczytać ogłoszenie do końca?

Zapamiętaj tylko:
- duża część dzienna
- kameralne osiedle
- gwarantowana prywatność
- niskie ceny mieszkań
- oddane do odbioru
- kupujesz bez prowizji i podatku PCC 2%
- bezpłatnie pomożemy Ci znaleźć kredyt
- zadzwoń, opowiem Ci resztę: ☎ 691-268-930

A może jednak masz chwilkę?
Zobacz, możesz zamieszkać w naprawdę świetnym miejscu:
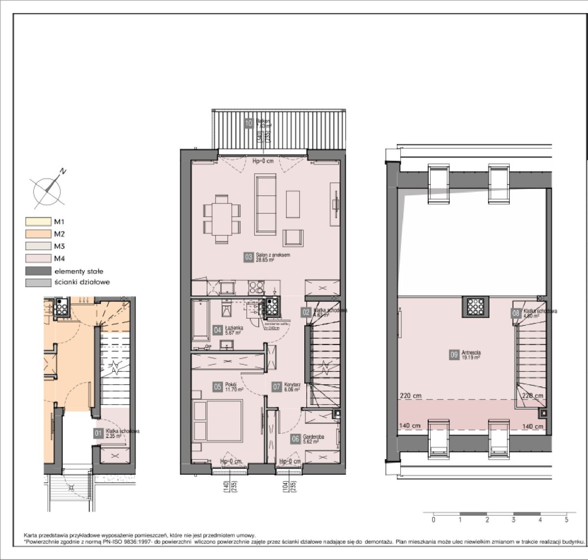
- Kompleks mieszkaniowy wyróżni zarówno lokalizacja i dopracowana forma osiedla, jak i szeroka gama formatów: mieszkań 3- i 4-pokojowych. Wszystkie mieszkania na piętrze będą miały również przestronną antresolę, która umożliwi dowolną aranżację przestrzeni.
- Prywatny ogródek przynależy również do części mieszkań zlokalizowanych na piętrze - dzięki zewnętrznym stalowym schodom wystarczy kilka sekund, by z mieszkania przenieść się do własnej prywatnej, zielonej oazy. Wyjątkowymi miejscami na mapie inwestycji będzie prywatny zagajnik oraz zbiornik wodny - przestrzeń idealna do zorganizowania rodzinnego pikniku czy popołudniowego spotkania w gronie sąsiadów.
- Tylko kilka minut spaceru dzieli mieszkańców od lasu i licznych terenów zielonych. Z myślą o najmłodszych na osiedlu zaprojektowany został plac zabaw, a na terenie całej inwestycji powstaną ławki i stojaki na rowery.
- Designerski kunszt inwestycji dopełni elewacja, która zostanie wyłożona płytką klinkierową oraz balkony, które zostaną wykończone deską kompozytową. Ten zabieg, w połączeniu ze spiralnymi stalowymi schodami, stworzy modny, industrialny charakter osiedla.
- Ponadto, w projekcie balkonów uwzględniono użycie niezwykle praktycznych, metalowych przepierzeń między balkonami w celu zagwarantowania intymności. Dzięki temu mieszkańcy mają zapewnioną prywatność, a budynki wyróżniają się oryginalnością.
- Ponadto istnieje możliwość zmiany umiejscowienia ścian działowych, ilości punktów hydraulicznych i elektrycznych oraz ich rozmieszczenia wewnątrz lokalu.



Konkrety? Proszę:
Gdańsk Kokoszki, ul. Stokłosy,
- Szkoła podstawowa 350m, 5 minut spacerem
- Przedszkole 1,4 km, 18 minut spacerem
- Biedronka 1,9 km, 5 minut samochodem
- Lidl 2km, 5 minut samochodem
- Stacja benzynowa 24h, 600m, 8 min spacerem



W bliskim zasięgu:
- Obwodnica Trójmiasta (3,4 km, 7 minut samochodem)
- Centrum Gdańska (12km, 15 minut samochodem)
- Staw Kokoszki (1,6k m, 24 minuty spacerem)
- Lotnisko (6,8 km, 13 minut samochodem)
- Auchan (5km, 10 minut samochodem)
- Pływalnia (2,9 km, 8 minut samochodem)
- Restauracja (1,5 km, 5 minut drogi samochodem)


To nie do końca to czego szukasz? A wiesz, że to tylko jedno z ponad 3 000 mieszkań z rynku pierwotnego, które mamy w ofercie?
Zamiast przeglądać kolejne ogłoszenia, zadzwoń: ☎ 691-268-930.

Dysponujemy pełną ofertą kilkudziesięciu deweloperów jeśli zechcesz znajdziemy dla Ciebie alternatywny układ, metraż czy umiejscowienie w budynku - bez żadnej prowizji, bez podatku PCC 2%, a nie raz z dodatkowym RABATEM dla klientów naszego biura.
Oferujemy pełne wsparcie przy bezpiecznej finalizacji zakupu oraz pomożemy w uzyskaniu najlepszej oferty kredytowej. Polecimy też sprawdzoną ekipę remontową czy architekta.
Chcesz się dowiedzieć więcej o naszej ofercie lub o nas?
Zapraszamy na naszą stronę salonnieruchomosci.pl

Napisz lub zadzwoń już teraz !
☎ 691 268 930
Damian Zając
Doradca ds. Nieruchomości Rynku Pierwotnego
Salon Nieruchomości
biuro@salonnieruchomosci.pl

Plan Nieruchomości

Kontakt do opiekuna:

Salon Nieruchomości

Damian Zając
Nieprawidłowy adres E-mail
Mapa

Strona korzysta z plików cookie w celu realizacji usług zgodnie z Polityką prywatności. Możesz określić warunki przechowywania lub dostępu do cookie w Twojej przeglądarce.

Przycisk Wróć do góry