Przedsprzedaż - Zamieszkaj w świetnym miejscu!

lokalizacja: Gdańsk, Pilotów

702 396,00 PLN

9 842,99 PLN

Opis nieruchomości

Inwestycja zlokalizowana… Nie masz czasu, by doczytać ogłoszenie do końca?
Zapamiętaj tylko:



- kameralne osiedle
- wysoka jakość wykonania
- gwarantowana prywatność
- niskie ceny mieszkań
- Odbiór: II kwartał 2025
- kupujesz bez prowizji i podatku PCC 2%
- bezpłatnie pomożemy Ci znaleźć kredyt
- zadzwoń, opowiem Ci resztę: ☎ 691-268-930

A może jednak masz chwilkę?
Zobacz, możesz zamieszkać w naprawdę świetnym miejscu:
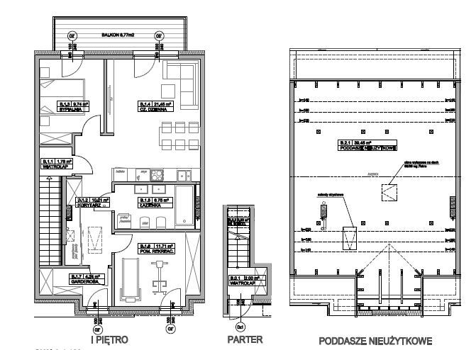
- Kameralną inwestycje wyróżni zarówno lokalizacja jak i dopracowana forma osiedla. Do wyboru mamy dwa rodzaje mieszkań: trzypokojowe o powierzchni 63 m² z ogródkiem oraz czteropokojowe o metrażu 126 m² z balkonem. Osiedle będzie składało się z 7 budynków o powyższej konfiguracji.
- Inwestycja zlokalizowana jest w bezpiecznej, spokojnej i pełnej zieleni okolicy, z przeważającą zabudową jednorodzinną. Nie brakuje tutaj miejsc do aktywnej rekreacji - długich spacerów, porannego joggingu czy rowerowych wycieczek.
- Osiedle znajduje się w Kowalach. To kameralna miejscowość tuż obok Gdańska, która stanowi kwintesencję spokojnego mieszkania w doskonale skomunikowanej lokalizacji. Wygodny dojazd na obwodnicę Trójmiasta oraz transport publiczny pozwala na swobodne poruszanie się po całym regionie, czy to w kierunku Gdańska lub Sopotu, czy Gdyni.
- Do każdego mieszkania przynależy jedno miejsce postojowe naziemne wyposażone w stację do ładowania samochodów elektrycznych. Dodatkowo, z myślą o rosnącej popularności rowerów jako środka transportu, przewidziano indywidualne, zamykane schowki, zapewniające bezpieczne przechowywanie jednośladów.
- Do mieszkań na parterze przynależą prywatne ogródki z ekspozycją południowo-zachodnią. To idealne miejsce do odpoczynku, uprawy roślin lub wspólnych posiłków na świeżym powietrzu. Natomiast do mieszkań na piętrze przynależą duże balkony o powierzchni 8,77 m².
- Ponadto istnieje możliwość zmiany umiejscowienia ścian działowych, ilości punktów hydraulicznych i elektrycznych oraz ich rozmieszczenia wewnątrz lokalu.

Konkrety? Proszę:
Kowale, ul. Pilotów,
- Przedszkole 130m, 2 minut spacerem
- Szkoła podstawowa 400m, 6 minut spacerem
- Biedronka 750m, 10 minut spacerem
- Lidl 1,4km, 5 minut samochodem

W bliskim zasięgu:
- Obwodnica Trójmiasta (600 m, 3 minuty samochodem)
- Centrum Gdańska (9 km, 15 minut samochodem)
- Zbiornik retencyjny Świętokrzyska II (1,8 km, 24 minuty spacerem)
- Lotnisko (13 km, 15 minut samochodem)


To nie do końca to czego szukasz? A wiesz, że to tylko jedno z ponad 3 000 mieszkań z rynku pierwotnego, które mamy w ofercie?
Zamiast przeglądać kolejne ogłoszenia, zadzwoń: ☎ 691-268-930.

Dysponujemy pełną ofertą kilkudziesięciu deweloperów jeśli zechcesz znajdziemy dla Ciebie alternatywny układ, metraż czy umiejscowienie w budynku - bez żadnej prowizji, bez podatku PCC 2%, a nie raz z dodatkowym RABATEM dla klientów naszego biura.
Oferujemy pełne wsparcie przy bezpiecznej finalizacji zakupu oraz pomożemy w uzyskaniu najlepszej oferty kredytowej. Polecimy też sprawdzoną ekipę remontową czy architekta.
Chcesz się dowiedzieć więcej o naszej ofercie lub o nas?
Zapraszamy na naszą stronę salonnieruchomosci.pl

Napisz lub zadzwoń już teraz !
☎ 691 268 930
Damian Zając
Doradca ds. Nieruchomości Rynku Pierwotnego
Salon Nieruchomości
biuro@salonnieruchomosci.pl

Plan Nieruchomości

Kontakt do opiekuna:

Salon Nieruchomości

Damian Zając
Nieprawidłowy adres E-mail
Mapa

Strona korzysta z plików cookie w celu realizacji usług zgodnie z Polityką prywatności. Możesz określić warunki przechowywania lub dostępu do cookie w Twojej przeglądarce.

Przycisk Wróć do góry