Nowa inwestycja! Szeroki wybór!

lokalizacja: Gdańsk, Borkowska

342 860,00 PLN

12 400,00 PLN

Opis nieruchomości

Zamieszkaj w miejscu, gdzie nowoczesny komfort spotyka się z zielonym spokojem!

Przy ul. Borkowskiej w Gdańsku rusza sprzedaż mieszkań w nowej, kameralnej inwestycji z prywatnymi ogródkami, strefą rekreacyjną i pełną infrastrukturą. Tu każdy dzień będziesz zaczynać w otoczeniu natury, z szybkim dojazdem obwodnicy Trójmiasta. Zarezerwuj najlepszy układ już teraz!

Lokalizacja i otoczenie


  • Spokojna, dobrze skomunikowana część Gdańska — idealna dla rodzin i singli

  • Blisko tereny zielone, ścieżki rowerowe, sklepy, szkoły i punkty usługowe.

  • Szybki dojazd do centrum miasta oraz głównych tras dojazdowych.


Charakter inwestycji


  • Dwa nowoczesne, pięciokondygnacyjne budynki.

  • 119 mieszkań od 27 do 81 m² — od kawalerek po przestronne lokale rodzinne.

  • Partery z prywatnymi ogródkami, wyższe kondygnacje z przestronnymi, zadaszonymi balkonami.

  • Funkcjonalny rozkład i duże przeszklenia zapewniające naturalne światło.

  • Planowany termin oddania: III kwartał 2027 - zakup już dziś daje szeroki wybór lokali i najlepsze ceny.


Udogodnienia dla mieszkańców


  • Prywatne ogródki i zielone części wspólne sprzyjające relaksowi.

  • Rowerownia, komórki lokatorskie, zadaszone miejsca postojowe.

  • Instalacja przygotowana pod stacje ładowania samochodów elektrycznych.

  • Monitoring osiedlowy i system wjazdu sterowany pilotem lub telefonem.

  • Strefa rekreacyjna, plac zabaw i wybieg dla psów.

  • Przyjazna przestrzeń sprzyjająca integracji mieszkańców.


Dlaczego warto?


  • Zakup na wczesnym etapie daje szeroki wybór układów i kondygnacji.

  • Atrakcyjna lokalizacja z wysokim potencjałem wzrostu wartości nieruchomości.

  • Nowoczesny standard i kameralna atmosfera.


Dlaczego to najlepsza inwestycja? Oszczędzasz od pierwszego dnia:


  • 0% prowizji - nie płacisz ani złotówki ponad cenę nieruchomości 

  • 0% podatku PCC - oszczędzasz 2% wartości mieszkania

  • Często dodatkowe rabaty dla naszych klientów


Pełne wsparcie finansowe:


  • Darmowa pomoc w uzyskaniu kredytu

  • Znajdziemy najlepsze oprocentowanie na rynku

  • Załatwiamy wszystkie formalności


Kompleksowa obsługa:


  • Bezpieczna finalizacja zakupu

  • Polecamy sprawdzone ekipy remontowe

  • Kontakt z najlepszymi architektami


Nie znalazłeś idealnego układu? Znajdziemy alternatywę:


  • Inny metraż

  • Inne piętro

  • Inna lokalizacja

  • Zawsze bez prowizji i często z rabatem


To tylko jedna z wielu atrakcyjnych propozycji w naszej ofercie. Masz ponad 3000 mieszkań do wyboru.  Współpracujemy z kilkudziesięcioma deweloperami w całym Trójmieście.

Zadzwoń teraz i umów się na prezentację. Pokażę Ci nie tylko to mieszkanie, ale też wszystkie inne opcje, które mogą Cię zainteresować. Bez zobowiązań, bez kosztów - tylko konkretne możliwości i profesjonalne doradztwo.

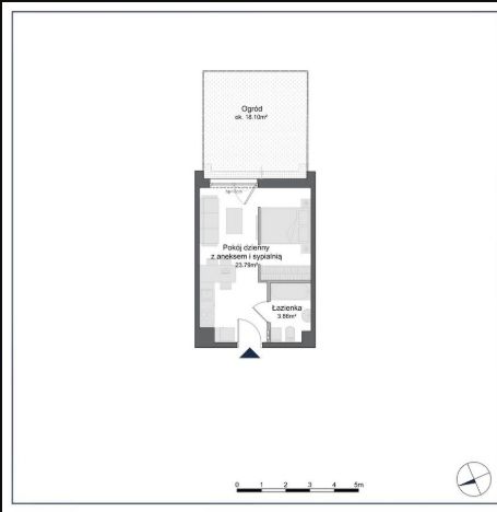
Plan Nieruchomości

Kontakt do opiekuna:

Salon Nieruchomości

Damian Zając
Nieprawidłowy adres E-mail
Mapa

Strona korzysta z plików cookie w celu realizacji usług zgodnie z Polityką prywatności. Możesz określić warunki przechowywania lub dostępu do cookie w Twojej przeglądarce.

Przycisk Wróć do góry