Twoje nowe mieszkanie w zielonej okolicy Oruni

lokalizacja: Gdańsk, Starogardzka

801 000,00 PLN

11 308,77 PLN

Opis nieruchomości

Nowoczesne mieszkania Starogardzka - komfort i bezpieczeństwo w zielonej części Gdańska

Szukasz mieszkania w spokojnej, zielonej okolicy, a jednocześnie zależy Ci na wygodnym dostępie do centrum miasta? Ta oferta jest dla Ciebie! W tej części Gdańska powstają nowoczesne budynki z szerokimi alejkami, dużą ilością zieleni i przestronnymi dziedzińcami, które zapewniają prywatność i komfort codziennego życia.

Atuty lokalizacji i mieszkań:


  • Bliskość terenów rekreacyjnych, ścieżek spacerowych i rowerowych - idealne miejsce na aktywny wypoczynek oraz relaks na świeżym powietrzu.

  • Nowoczesne rozwiązania proekologiczne: panele fotowoltaiczne, energooszczędne oświetlenie LED, ograniczenie strat ciepła - realne oszczędności na kosztach utrzymania.

  • Funkcjonalne układy mieszkań - szeroki wybór metraży, mieszkania z balkonami, loggiami lub ogródkami, idealne zarówno dla rodzin, jak i singli.

  • Wysoki poziom bezpieczeństwa: monitoring, wideodomofony, drzwi antywłamaniowe, lampy antybakteryjne i urządzenia do dezynfekcji powietrza w częściach wspólnych.

  • Rozwinięta infrastruktura - w pobliżu sklepy, szkoły, przedszkola, punkty usługowe oraz przystanki komunikacji miejskiej, co ułatwia codzienne funkcjonowanie.

  • Przestrzeń przyjazna rodzinom: place zabaw, tereny rekreacyjne, miejsca do wypoczynku.

  • Termin oddania mieszkań: I kwartał 2027 roku.



To wyjątkowa okazja - obecnie trwa przedsprzedaż! Skorzystaj z możliwości wyboru najlepszych mieszkań na najbardziej atrakcyjnych warunkach cenowych i lokalizacyjnych, zanim oferta trafi do szerokiej sprzedaży. Zarezerwuj swoje wymarzone mieszkanie już dziś i zyskaj pewność najlepszej inwestycji na przyszłość!

To miejsce dla osób ceniących wygodę, nowoczesność i bliskość natury - świetna propozycja zarówno do zamieszkania, jak i jako inwestycja pod wynajem.

Zachęcam do kontaktu!
Chętnie odpowiem na wszystkie pytania, prześlę aktualną ofertę mieszkań oraz umówię prezentację na miejscu. Pomogę wybrać lokal najlepiej dopasowany do Twoich potrzeb i przedstawię dostępne możliwości finansowania.

To nie do końca to czego szukasz? A wiesz, że to tylko jedno z ponad 3 000 mieszkań z rynku pierwotnego, które mamy w ofercie?
Zamiast przeglądać kolejne ogłoszenia, zadzwoń

Dysponujemy pełną ofertą kilkudziesięciu deweloperów - jeśli zechcesz, znajdziemy dla Ciebie alternatywny układ, metraż czy umiejscowienie w budynku - bez żadnej prowizji, bez podatku PCC 2%, a nieraz z dodatkowym RABATEM dla klientów naszego biura.

Oferujemy pełne wsparcie przy bezpiecznej finalizacji zakupu oraz pomożemy w uzyskaniu najlepszej oferty kredytowej. Polecimy też sprawdzoną ekipę remontową czy architekta.

Chcesz się dowiedzieć więcej o naszej ofercie lub o nas?
Zapraszamy na naszą stronę: salonnieruchomosci.pl

Napisz lub zadzwoń już teraz!


Przedstawione wizualizacje mają charakter poglądowy i nie stanowią oferty handlowej. Mieszkania są oddawane w standardzie deweloperskim, bez wykończenia.

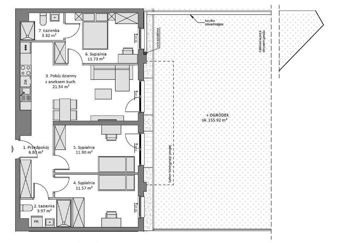
Plan Nieruchomości

Kontakt do opiekuna:

Salon Nieruchomości

Damian Zając
Nieprawidłowy adres E-mail
Mapa

Strona korzysta z plików cookie w celu realizacji usług zgodnie z Polityką prywatności. Możesz określić warunki przechowywania lub dostępu do cookie w Twojej przeglądarce.

Przycisk Wróć do góry